Строительство дома 99 кв. м. из сэндвич-панелей

Где получить услугу

Пазл Хаус / Puzzle house
Компания "Пазл Хаус" (Puzzle house) строит дома и коттеджи из металлических сэндвич-панелей в…

Стоимость

от 1790000
150044, Ярославская область, город Ярославль, улица Промышленная, дом 20, строение 5
пн-вс 9:00-18:00

Описание

Компания  "Пазл Хаус" готова предложить вам строительство недорогого, просторного и надежного дома из металлических сэндвич-панелей! Строим в Ярославле и Ярославской области, а также в соседних регионах!

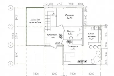
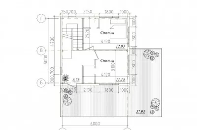
ПРОЕКТ №12. Цена: 1 790 000 рублей.

  • Общая площадь дома: 99 м2
  • Размеры дома: 9х9м

Особенности проекта №12.

Фундамент: ленточный монолитный железобетонный, мелкого заложения, по песчаной подушке, с утеплением

Наружные стены: металлические сэндвич-панели с толщиной утеплителя 150мм, расцветка "под дерево"

Перекрытия: монолитные ж\б по профлисту

Каркас: металлический, покрытый 2-мя слоями грунт-эмали

Кровля: кровля из ПВХ-мембраны (срок службы более 20 лет) Толщина утеплителя 150 мм с устройством пароизоляционного слоя

Водосточная система: пластиковая, по системе 125 (компания-производитель Hunter Plastics)

Окна: ПВХ-профиль Rehau с 2-хкамерным энергосберегающим стеклопакетом отливы из оцинкованной стали с полимерным покрытием

Двери: Наружные – металлические, с многоконтурным утеплением

Отмостка с утеплением.

ПОЧЕМУ ВЫГОДНО ЗАКАЗАТЬ ДОМ ИЗ СЭНДВИЧ-ПАНЕЛЕЙ У НАС?

  • Каркас дома и стеновые сэндвич-панели изготавливаются в заводских условиях с точностью до миллиметра
  • Дом или коттедж из сэндвич-панелей по качеству и цене обойдется вам дешевле домов из традиционных материалов: кирпича, дерева, блоков.
  • Весь комплекс строительных работ мы произведем сами и без посредников — у нас большой штат специалистов и собственные производственные мощности и оборудование
  • У нас собственная спецтехника — в процессе строительства у нас не возникает проблем с логистикой
  • У нас работают специалисты высокой квалификации, имеющие большой стаж работы в строительной отрасли
  • Мы дорожим своей репутацией, наработанной годами, поэтому вы на 100 % можете быть уверены в успехе вашего строительства!

Остались вопросы? Узнайте больше на нашем официальном сайте http://puzzlehouse.ru/ или позвоните нам:

  •  +7 (4852) 49-33-29
  •  +7 (930) 100-06-78
Комментарии к материалу «Строительство дома 99 кв. м. из сэндвич-панелей»
Еще не написано ни одного отзыва. Будьте первым.